








Lista para habitar bajo el concepto llave en mano, incluye cimentación básica o flotado, piso en cemento pulido, baño con regadera, lavabo y wc , acabados en interiores en osb con acabado semi mate y exteriores, cancelería en aluminio.
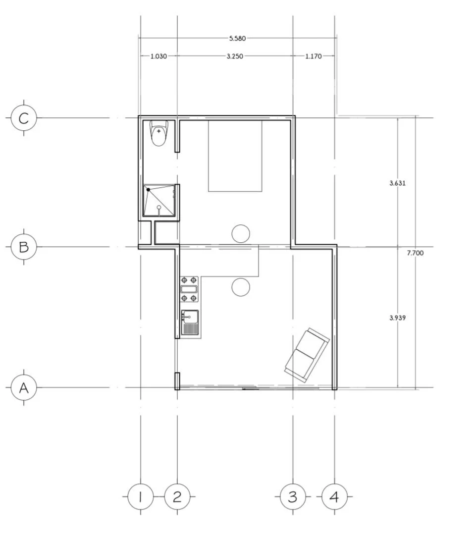
Medidas: 5.5 por 7.7 m2
Estructura con 50 años de garantía por escrito
Tiempo de fabricación: 3 meses promedio
Los gastos de envío se cotizan por separado
Lista para habitar bajo el concepto llave en mano, incluye cimentación básica o flotado, piso en cemento pulido, baño con regadera, lavabo y wc , acabados en interiores en osb con acabado semi mate y exteriores, cancelería en aluminio.
Medidas: 5.5 por 7.7 m2
Estructura con 50 años de garantía por escrito
Tiempo de fabricación: 3 meses promedio
Los gastos de envío se cotizan por separado